Nuvola
I.I.S.S. "J.M.KEYNES" - BOIS00800D
Circolari Studenti
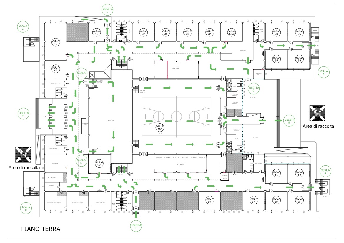
INTERDIZIONE SCALA ANTINCENDIO “B” PRIMO PIANO, LATO NORD-EST – MISURE URGENTI IN CASO DI EVACUAZIONE.
Torna indietro
Data pubblicazione
13/09/2021
Data archiviazione
13/09/2022
Titolario
A39D - Sicurezza nei luoghi di lavoro D.Lvo 626/94
Ufficio responsabile
Nessun ufficio responsabile specificato
Utente responsabile
Nessun utente responsabile specificato
Allegati
Interdizione scala antincendio.doc
P1.jpg
PT.jpg
ATTENZIONE